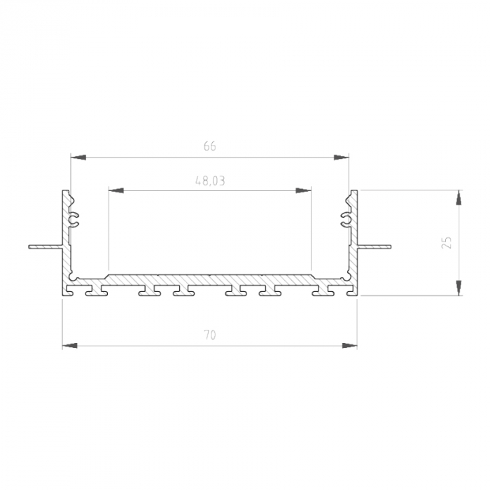
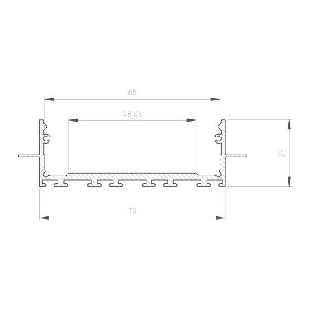
Profilul arhitectural P27-2 este proiectat pentru instalare într-o placă de gips-carton (până la o grosime de 12,5 mm). Designul său permite profilului să fie la același nivel cu suprafața plăcii. Se pot monta 5-6 benzi LED și este perfectă pentru a crea corpuri de iluminat complexe în clădiri comerciale sau în locuințe (linii de lumină în tavane suspendate și pereți din gips-carton). Construcția profilului și a capacului din policarbonat (PC) permite o linie uniformă de lumină pe întreaga suprafață (fără puncte).
Mai multe informații despre profilul LED sunt disponibile apelând 0764099099 și la următoarea adresă de e-mail:
office@24led.ro
